SẢN PHẨM
PHỤ KIỆN GANG NỐI ỐNG HDPE KHÔNG CẦN HÀN (SIZE 40÷1200)
VAN GANG
PHỤ KIỆN CHO ỐNG uPVC, ỐNG GANG, ỐNG THÉP
VAN ĐỒNG - ĐAI KHỞI THỦY GANG CẦU( BỘ ỐNG NGÁNH) - BỘ ĐỒNG HỒ NẮP GANG
SẢN PHẨM KHÁC
Dowload Catalogues
Chứng nhận ISO, Quatest3
KHÁCH HÀNG TIÊU BIỂU
WEBLINKS
THỐNG KẾ TRUY CẬP
Giới thiệu

HA ĐẠT là một trong những nhà sản xuất Van và Phụ Kiện phục vụ trong ngành cấp nước và những ngành công nghiệp khác nhau. Sản phẩm của chúng tôi đa dạng gồm nhiều chủng loại Phụ kiện, Van, đặc biệt là Phụ kiện gang cầu nối ống HDPE không cần hàn. Mang Thương Hiệu HE ®.

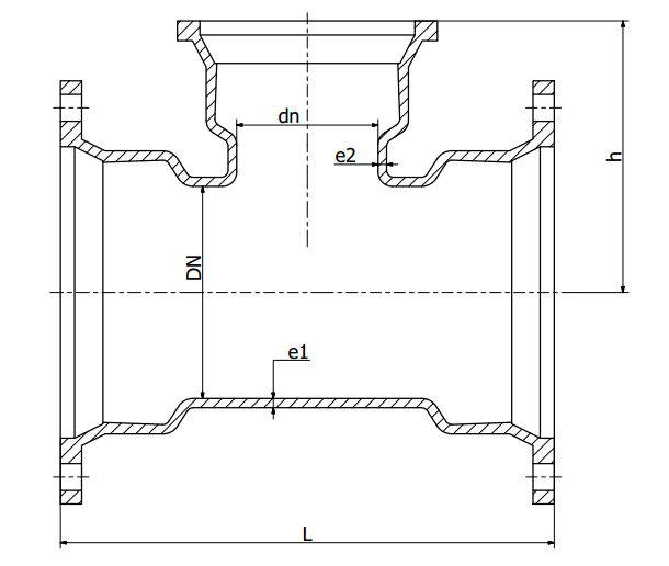
Tê FFF, FFB
  • Chi tiết sản phẩm
  • Thông số kỹ thuật

 

 Bảng kích thước

 

 

 

DN

Dn

E1

E2

L

h

80

80

7

7

330

165

100

80

7.2

7

330

175

100

100

7.2

7.2

350

175

150

100

7.8

7.2

355

200

150

150

7.8

7.8

415

205

200

100

8.4

7

335

225

200

150

8.4

7.8

415

230

200

200

8.4

8.4

475

265

250

100

9

7.2

360

250

250

250

9

9

535

270

300

150

9.6

7.2

425

275

300

150

9.6

7.8

480

280

300

200

9.6

8.4

540

285

300

300

9*.6

9.6

655

300

350

350

10.2

10.2

715

360

400

200

10.8

8.4

545

335

450

200

11.4

8.4

550

365

500

300

12

9.6

670

430

500

500

12

12

900

440

600

300

13.2

9.6

675

480

600

400

13.2

10.8

790

490

600

600

13.2

13.2

1020

510

700

500

14.4

10.8

815

540

700

700

14.4

14.4

1165

580

800

200

15.6

8.4

590

535

800

400

15.6

10.8

820

590

800

800

15.6

15.6

1285

645

900

200

16.8

8.4

595

585

900

400

16.8

10.8

830

640

900

900

16.8

16.8

1410

705

1000

200

18

8.4

620

635

1000

400

18

10.8

855

690

1000

1000

18

18

1550

775


 

VIDEO
LIÊN HỆ

CÔNG TY TNHH HA ĐẠT

Địa chỉ: 160/25/27 Huỳnh Thị Hai, KP 4, P. Tân Chánh Hiệp,Q.12, Tp. HCM
Tel: (84-8) 3845 3871
Fax: (84-8) 3845 3891
Email: hadat.he2005@gmail.com
Website: www.hadat.vn

Developed by

CÔNG TY TNHH HA ĐẠT 

Địa chỉ: 160/25/27 Huỳnh Thị Hai,

KP 4, P. Tân Chánh Hiệp,Q.12, Tp. HCM
Tel: (84-8) 3845 3871
Fax: (84-8) 3845 3891
Email: hadat.he2005@gmail.com

 

Copyright © 2012 Hadat. All rights reserved